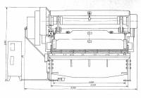
Наше предприятие реализует ножницы гильотинного типа модели НА3121 с наклонным ножом
Цена 680 000 рублей с НДС.
Применяются в заготовительных цехах машиностроительных предприятий. На гильотинных ножницах
может производиться резка листа как по разметке, так и без нее - по заднему или боковому упорам.
Выполнены с верхним приводом. Вращение от электродвигателя через клиноременную передачу,
муфту-тормоз, цилиндрический редуктор передается на эксцентриковый вал и далее через
кривошипно-шатунный механизм — ножевой балке.
Особенности конструкции гильотинных ножниц НА3121
Станина гильотины сварная, из листовой стали. Две боковые стойки соединены столом и тремя стяжками.
Стол, к которому крепится нижний нож, имеет регулировку для установки необходимого зазора.Ножевая
балка гильотины НА3121 получает возвратно-поступательное движение от коленчатого вала через шатуны
и имеет пружинные уравновешиватели. На левом конце приводного вала расположена пневматическая
жестко сблокированная многодисковая фрикционная муфта-тормоз. Для мерной резки полос ножницы снабжены
задним упором, который установлен с тыльной стороны ножевой балки. Установка заднего упора производится
с помощью винтового механизма, приводимого от маховичка вручную. Лист при резке прижимается прижимной
балкой, работающей согласованно с ножевой балкой. Необходимые усилия прижима обеспечивают пружины,
которые размещаются в стаканах прижимной балки. Электросхема обеспечивает работу гильотины на одиночных
и автоматических ходах.Управление гильотины НА3121 кнопочное и от педали. Смазка основных механизмов
комбинированная. Конструкция соединения ножевой балки с шатунами предусматривает возможность увеличения
открытой высоты ножей на 20 мм, что необходимо для продольной резки листа.Прижим разрезаемого листа к
столу осуществляется индивидуальными подпружиннеными штоками.
* Для работы с НА3121 необходим сжатый воздух, обеспечивающий рабочее давление в пневмосистеме 0,5 МПа.
Гильотины с пневмомуфтой работают менее шумно, и более надежны в эксплуатации.
Технические характеристики гильотинных ножниц НА3121
| Параметры | НА3121 |
|---|---|
| Наибольшие размеры разрезаемого металла с временным сопротивлением 500 мпа (50кгс) мм, толщина | 12 |
| Наибольшие размеры разрезаемого металла с временным сопротивлением 500 мпа (50кгс) мм, ширина | 2000 |
| Частота ходов ножа, мин. не менее | 40 |
| Частота используемых ходов ножа, мин. | 9 |
| Частота используемых ходов ножа, мин. | 9 |
| Угол наклона подвижного ножа, град. не более | 2,10 |
| Наибольшая длина листов отрезаемых по заднему упору, мм | 500 |
| Усилие прижима, кн не менее | 73 |
| Габаритные размеры в плане, мм слева - направо | 1950 |
| Габаритные размеры в плане, мм спереди - назад | 3360 |
| Высота над уровнем пола | 2135 |
| Предельное отклонение на длине 1000 мм | 0,25 |
| Масса, кг, не более | 7000 |
кнопочное или педальное

ЗАКАЗАТЬ ПОСТАВКУ НОЖНИЦ МОДЕЛИ НА3121 ИЛИ ПОЛУЧИТЬ ДОПОЛНИТЕЛЬНУЮ КОНСУЛЬТАЦИЮ МОЖНО ПО ТЕЛЕФОНУ:
8 - 928 623 10 77
НАПРАВИТЬ ЗАЯВКУ НА ПОСТАВКУ НОЖНИЦ МОДЕЛИ НА3121 ПО ФАКСУ:
8 - 863 622 28 39
ВЫ МОЖЕТЕ НАПРАВИТЬ ЗАЯВКУ НА ПОСТАВКУ НОЖНИЦ МОДЕЛИ НА3121 ON-line:
ДРУГИЕ МОДЕЛИ НОВЫХ ИЗГОТАВЛИВАЕМЫХ И ПОСТАВЛЯЕМЫХ СТАНКОВ:
ножницы гильотинного типа моделей НА3225 НА3223 с наклонным ножом и комплексы автоматизированные моделей АКНА3225 и АКНА3223
| 




